Eladó Téglalakás, Győr

#196400809

Eladó Téglalakás

57.99 millió Ft

Győr Szitásdomb
Alapterület:
60 m2
Szobák száma:
3
Állapot:
Új építésű
Építési mód:
Tégla
CSOK igényelhető
Kertkapcsolatos
Megújuló energiaforrás
Remek ajánlat!
Sürgős
Új építésű!

Kérjen személyes bemutatást!
Adja meg adatait, és hogy mikor érne rá!

Az Adatkezelési tájékoztatót elolvastam és elfogadom.

Megfelelő időpontok

Hétköznap délelőtt
Hétköznap délután
Hétköznap este
Hétvégén délelőtt
Hétvégén délután
Hétvégén este
Kérés elküldése
1. Emelet
Hőszigetelt
Hőszivattyú
Összkomfort
Bevezetve (230 Volt)
Van
Közműhálózatba bekötve

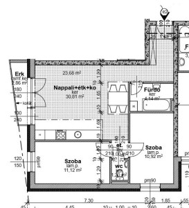
Nappali + 2 szobás, erkélyes lakás

Győr-Belvárosától pár perces autóútra, Szitásdomb új kialakítású részén új építésű 29 lakásos társasházban nappali + 2 szobás lakás eladó.

Az 1. emeleten található 59,20 nm-es ingatlanban amerikai konyhás nappali, 2 szoba, fürdőszoba, külön WC, közlekedő, előtér kerül kialakításra. A nappaliból 2,86 nm-es erkély nyílik. 

Az ingatlan fűtéskész ára: 57.990.000 Ft. Kulcsrakész befejezés kérhető.
Gépkocsibeálló ára: 1.700.000 Ft
Lehetőség van tároló vásárlására is, ára: 1.500.000 Ft-tól.

A társasház Szitásdomb új lakóparkjában épül. A földszinti lakások terasszal, az emeleti lakások erkéllyel/terasszal rendelkeznek. A társasház zárt udvarán felszíni parkolók kerülnek kialakításra. A társasház 30 cm-es falazóelemből, 20 cm-es homlokzati hőszigeteléssel épül. A műanyag, hőszigetelt nyílászárók 6 légkamrásak, 3 rétegű üvegezéssel rendelkeznek. Az ár tartalmazza a redőny előkészítését lefutókkal, az elektromos kiépítés felár ellenében kérhető. A társasház fűtését hőszivattyú biztosítja. Lakásonként egyedi hőmennyiségmérő, a fürdőszobában törölközőszárító radiátor kerül. Klímakiépítés igény esetén felár ellenében kérhető.

A társasház átadásának tervezett időpontja: 2026 nyár

Bővebb információkért keressen bizalommal!
Hétköznap és hétvégén is várom hívását!

A hirdetésben feltüntetett képek illusztrációk.

Kérdése van?
Adja meg adatait és felhívjuk!

Az Adatkezelési tájékoztatót elolvastam és elfogadom.
Üzenet küldése