Eladó Családi ház, Győr

#196400795

Eladó Családi ház

62.9 millió Ft

Győr Győrszentiván
Alapterület:
157 m2
Szobák száma:
5
Állapot:
Felújítandó
Építési mód:
Tégla
Jó közlekedéssel
Kertkapcsolatos
Remek ajánlat!
Sürgős

Kérjen személyes bemutatást!
Adja meg adatait, és hogy mikor érne rá!

Az Adatkezelési tájékoztatót elolvastam és elfogadom.

Megfelelő időpontok

Hétköznap délelőtt
Hétköznap délután
Hétköznap este
Hétvégén délelőtt
Hétvégén délután
Hétvégén este
Kérés elküldése
512 m2
Felújításra szoruló
Konvektor
Dupla komfort
I
230 - 400 Volt
Van
Vezetékes gáz
Közműhálózatba bekötve

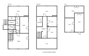
5 szobás családi ház eladó

Remek ajánlat!

Győrszentiván egyik kedvelt utcájában 157 nm-es, háromszintes, felújítandó, 5 szobás, tégla építésű családi ház 512 nm-es telken eladó.

Az ingatlan sok lehetőséget rejt magában. Méretéből adódóan akár két lakrész is kialakítható, vagy nagycsaládosoknak, összeköltöző családoknak is tágas otthonná varázsolható!

Az 1970-és évek végén épült ház első szintjén konyha, nappali, szoba, fürdőszoba, külön WC, kamra, közlekedő, előtér található. A nappaliból vezető lépcsőn keresztül érhető el az emelet, ahol 3 szoba (1 nagy szoba, 2 kis szoba), fürdőszoba, közlekedő került kialakításra. A közlekedőből nyílik egy hatalmas tetőterasz, melyről rálátni a fák lombkoronájára, a környező házakra. Pihenésre, kikapcsolódásra is alkalmas. A családi ház alatt egy félszuterén pince található, mely egy műhelyből, egy raktárból és egy WC-ből áll. A pince elég tágas, vállalkozás indításához vagy hobbiszobának is használható.

A hátsó kertben 3 termő meggyfa, egy diófa található, a ház előtti kertben ringló szilvafa. A kert kiválóan alkalmas pihenésre, szabadtéri programok szervezésére.

Fűtés a felső 2 szinten konvektorral megoldott, míg a pincében kályhával. A melegvízről villanybojler gondoskodik. Az ingatlanba az ipari áram be van vezetve. A tető héjazatának cseréje megtörtént, a házra bitumenes lemezfedés került. Az ingatlan I energetikai tanúsítvánnyal rendelkezik.

Méretéből és elrendezéséből kifolyólag ideális választás családoknak, összeköltözőknek.

Ha Győrben vagy környékén kertes otthont keres, várom hívását!

Az ingatlan irányára: 62.900.000 Ft

Bővebb információkért forduljon hozzám bizalommal.
Hétköznap és hétvégén is várom hívását!

Az adásvételi szerződés teljes körű lebonyolításával, díjmentes, bankfüggetlen hitelügyintézéssel állunk rendelkezésére.

A jelen hirdetésben rögzített, az ingatlannal kapcsolatos adatok, információk a Megbízó tájékoztatása alapján kerültek meghatározásra.

Kérdése van?
Adja meg adatait és felhívjuk!

Az Adatkezelési tájékoztatót elolvastam és elfogadom.
Üzenet küldése