Eladó Családi ház, Győrzámoly

#196400802

Eladó Családi ház

99.9 millió Ft

Győrzámoly
Alapterület:
96 m2
Szobák száma:
4
Állapot:
Új építésű
Építési mód:
Tégla
CSOK igényelhető
Kertkapcsolatos
Kulcsrakész!
Remek ajánlat!
Sürgős
Új építésű!

Kérjen személyes bemutatást!
Adja meg adatait, és hogy mikor érne rá!

Az Adatkezelési tájékoztatót elolvastam és elfogadom.

Megfelelő időpontok

Hétköznap délelőtt
Hétköznap délután
Hétköznap este
Hétvégén délelőtt
Hétvégén délután
Hétvégén este
Kérés elküldése
625 m2
Hőszigetelt
Kondenzációs kazán
Összkomfort
Bevezetve (230 Volt)
Van
Vezetékes gáz
Közműhálózatba bekötve

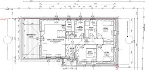
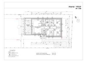
Kulcsrakész nappali + 3 szobás ház

Remek ajánlat! 

Győrzámolyon új építésű 96,01 nm-es, nappali + 3 szobás családi ház 625 nm-es telken kulcsrakész állapotban eladó. 

A kiváló elosztású házban amerikai konyhás nappali, 3 szoba, fürdőszoba, háztartási helyiség, külön WC, kamra, közlekedő, előtér található. A nappaliból nyílik 23,22 nm-es terasz. A ház belső elrendezése készültségi fokhoz mérten még változtatható.

A ház 30-as falazóelemből, 15 cm-es homlokzati szigeteléssel, 3 rétegű műanyag nyílászárókkal kerül kivitelezésre. Az ingatlan fűtését és melegvíz ellátását kondenzációs kazán biztosítja. Az ár 2 db klímát, redőnyöket és színes ereszt tartalmazza. Felár ellenében hőszivattyús fűtés, kerti csap, riasztó előkészítés, térkövezés kérhető.

Várható átadás 2026 év vége.

Az ingatlan kulcsrakész ára: 99.900.000 Ft. A kulcsrakész ár nem tartalmazza a konyhabútort.
Az ár tartalmazza a telek árát is.

Bővebb információkért forduljon hozzám bizalommal.
Hétköznap és hétvégén is várom hívását!

Díjmentes, bankfüggetlen hitelügyintézéssel állunk rendelkezésére.

A hirdetésben feltüntetett képek illusztrációk.

Kérdése van?
Adja meg adatait és felhívjuk!

Az Adatkezelési tájékoztatót elolvastam és elfogadom.
Üzenet küldése